越谷市増林【新築一戸建】
新築戸建
販売中

| 所在地 | 埼玉県越谷市増林1060-5付近 |
|---|---|
| 交通 | 東武スカイツリーライン 「北越谷駅」からバス約8分バス停より徒歩12分 |
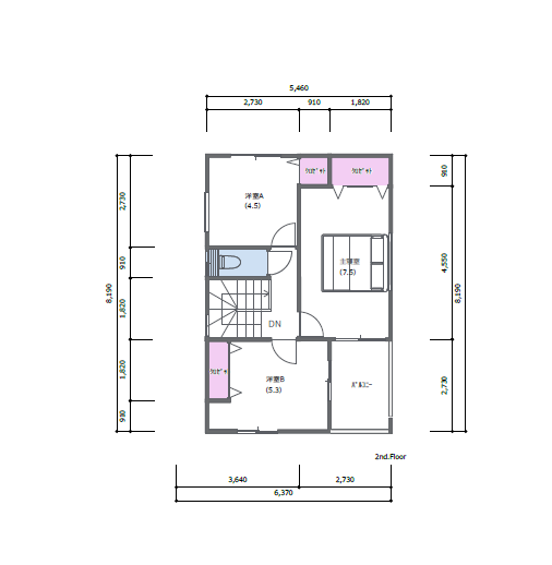
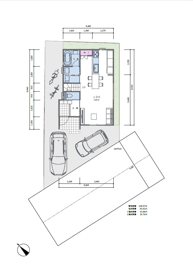
| 間取り | 3LDK(リビング・ダイニング:約18帖、洋室:約7.5帖、洋室:約5.3帖、洋室:約4.5帖) |
| 価格 | 2,780万円 |
物件概要
| 物件名 | 越谷市増林【新築一戸建て】 | ||
|---|---|---|---|
| 物件種目 | 新築戸建 | ||
| 所在地 | 埼玉県越谷市増林1060-5付近 | ||
| 交通 | 東武スカイツリーライン 「北越谷駅」からバス約8分バス停より徒歩12分 |
||
| 価格 | 2,780万円 | ||
| 土地面積 | 108.81㎡(約32.91坪) | ||
| 建物面積 | 83.62㎡(約25.29坪) | ||
| 駐車場 | 2台(車種による) | ||
| 地目 | 宅地 | ||
| 権利の種類 | 所有権 | ||
| 都市計画区域 | 市街化調整区域 | ||
| 建ぺい率 | 60% | ||
| 容積率 | 200% | ||
| 間取り | 3LDK(リビング・ダイニング:約18帖、洋室:約7.5帖、洋室:約5.3帖、洋室:約4.5帖) | ||
| 接道状況 | 南側幅員6.0m(公道) | ||
| 完成時期(築年月) [造成完了時期] |
2025年10月 | ||
| 施工会社 | 株式会社システムホーム | ||
| 設備 | ■18帖の広々LDK ■人気のパントリー収納 ■解放感のあるバルコニー ■遮熱高断熱の複層ガラスサッシ ■1階窓:シャッター、防犯ガラス ■全窓網戸付き キッチンLIXILシエラS 255cm システムバスLIXILリデアM 1616 |
||
| 周辺環境 | 越谷市立増林小学校… 1,100m(徒歩14分) 越谷市立東中学校・・2,300m(徒歩29分) スーパーマルサン 越谷花田店 … 2,220m(徒歩28分) ファミリーマート越谷公園前店 … 860m(徒歩11分) 越谷市立病院・・・・1,850m(徒歩24分) 島忠越谷店・・・・・2,450m(徒歩30分) |
||
| 取引態様 | 売主 | ||
| 情報更新日 | 次回更新予定日 | ||
地図
登録された住所から近隣地図を表示しています。
現況と異なることがございますので、詳細は担当者までお問合せください。
꙳✧˖°⌖꙳✧˖°⌖꙳✧˖°⌖꙳✧˖°⌖꙳✧˖°⌖꙳✧˖°⌖꙳✧˖°⌖꙳✧˖°✧˖°⌖꙳✧˖°⌖꙳✧˖°⌖꙳✧˖°⌖꙳✧˖°⌖꙳✧˖°⌖꙳✧˖°⌖꙳✧˖°
いまなら
🎁4月ご成約特別特典🎁
50万円(税込)
の追加工事サービス!!
キッチンの背面収納などの追加工事費用に充当できる♪
※キャンペーン適用期間:2026年4月末
※詳しい内容はお問い合わせフォームよりお気軽にお問い合わせください。
꙳✧˖°⌖꙳✧˖°⌖꙳✧˖°⌖꙳✧˖°⌖꙳✧˖°⌖꙳✧˖°⌖꙳✧˖°⌖꙳✧˖°✧˖°⌖꙳✧˖°⌖꙳✧˖°⌖꙳✧˖°⌖꙳✧˖°⌖꙳✧˖°⌖꙳✧˖°⌖꙳✧˖°
\人気のジャパンディ/\片流れのラップサイディングの外観が自慢/
注文住宅で培ったノウハウ
と
小さい子供の子育て真っ盛りのスタッフが「あったら嬉しい」アイディア満載
■LDKエアコン完備
■住宅が建ち並ぶ閑静な住宅街
■駐車2台可能(車種による)
■18帖の広々LDK
■人気のパントリー収納
■解放感のあるバルコニー
■遮熱高断熱の複層ガラスサッシ
■1階窓:シャッター、防犯ガラス
■全窓網戸付き
■週末は、キャンベルタウン野鳥の森やイオンレイクタウンにお出かけ♪
お問い合わせフォーム




















